Regenüberlaufkanal

Mönchfeld

Projekt-Details

Onjektplaner:
Diem Baker, Stuttgart


Auftraggeber:
Tiefbauamt Stuttgart


Bauherr:
Landeshauptstadt Stuttgart vertreten durch  Eigenbetrieb SES und Tiefbauamt


Planungs- und Bauzeit:
2016 bis 2017


Leistungsphasen (HOAI):
Tragwerksplanung LPH 1 bis 3


Baukosten / Honorarzone:
ca. 3,0 Mio. €

Projektbeschreibung

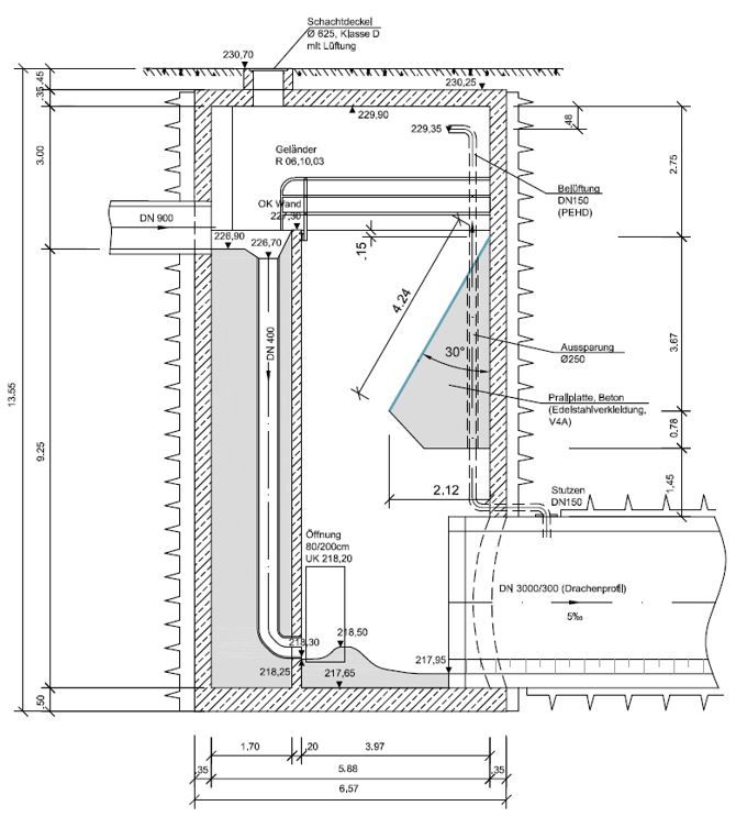
Im Stadtteil Mönchsfeld, im Tal des Feuerbachs soll ein Entlastungsbauwerk für die Kanalisation gebaut werden; plötzlich auftretende große Wassermengen sollen in einem Regenüberlaufkanal gepuffert werden. Zu große Wassermengen werden über ein Trennbauwerk in den Feuerbach entlastet. Neu gebaut werden ein ca. 14m tiefer Absturzschacht, ein ca. 100 m langer bergmännisch hergestellter Kanal mit einem Durchmesser von 3,0 m (Drachenprofil), ein Trennbauwerk, ein Drossel-bauwerk und ein kleines Betriebsgebäude.

Regenüberlaufkanal

Mönchfeld

    IGR Ingenieure GmbH


    Adressänderung seit 01.10.2025:

    Gebelsbergstr. 41
    D-70199 Stuttgart
    Tel. 0711-6566079-0
    Fax 0711-6566079-20
    Diese E-Mail-Adresse ist vor Spambots geschützt! Zur Anzeige muss JavaScript eingeschaltet sein.