Zweckverband Hochwasserschutz Schozachtal

Wüstenhausen

Projekt-Details

Auftraggeber:
Winkler und Partner GmbH,70176 Stuttgart


Planungs- und Bauzeit:
Planung: 2011Bauzeit: 2012


Leistung:
Objektplanung:
Lph 5 (teilweise)
Tragwerksplanung:Lph 4 + 5


Technische  Daten:
Bauwerkslänge: ca. 27 m
Brückenlänge: ca. 13,5 m
Brückenfläche: ca. 68 m²
Aushub: 2600 m³
Verbau: 950 m²


Herstellkosten:
ca. 0,5 Mio €

Projektbeschreibung

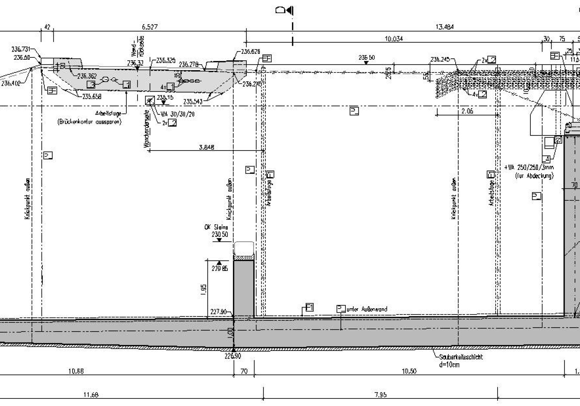
Im Einzugsgebiet des Gruppenbachs setzt der  Hochwasserzweckverband Schozachtal ein Hochwasserschutzkonzept um. Hierzu wird südlich der Ortslage das Hochwasserrückhaltebecken Wüstenhausen erstellt.
An der Südseite des Hochwasserrückhaltebeckens wird ein Durchlassbauwerk mit Wirtschaftwegüberführung und Betriebsgebäude ausgeführt.
Das Durchlassbauwerk ist als flach gegründete, wasserundurchlässige Stahlbetonkonstruktion geplant. Die zum Durchlassbauwerk schiefwinklige Überführung wird biegesteif in die Wände des Durchlassbauwerks eingespannt. Als Baugrubensicherung ist ein wasserdichter, rückverankerter Spundwandverbau vorgesehen.
Das auf dem Dammbauwerk flach gegründete Betriebsgebäude wird in Massivbauweise erstellt.
In Teilbereichen sind zur Böschungssicherung Blocksteinwände, die als Schwergewichtswände ausgeführt werden, mit Höhen bis zu 5 m vorgesehen.

IGR Ingenieure GmbH


Adressänderung seit 01.10.2025:

Gebelsbergstr. 41
D-70199 Stuttgart
Tel. 0711-6566079-0
Fax 0711-6566079-20
Diese E-Mail-Adresse ist vor Spambots geschützt! Zur Anzeige muss JavaScript eingeschaltet sein.