Verbindungsbrücke Bosch-Werk Reutlingen

Reutlingen

Projekt-Details

Architektur:
AIG Architekten und IngenieureStuttgart


Bauherr:
Robert Bosch GmbH


Planungs- und Bauzeit:
2020 bis 2021



Leistungsphasen (HOAI):
Tragwerksplanung LPH 1-5

Projektbeschreibung

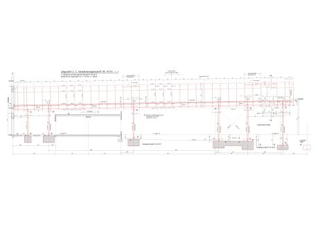
Die Gebäude RT 140 und RT 141 werden mit einer ca. 65m langen Reinraumbrücke miteinander verbunden. Die Stahlkonstruktion wird zwischen den Bestand eingepasst, teilweise müssen Bestandsgebäude zurückgebaut werden. Das Brückenbauwerk ist eine eigenständige Konstruktion und ist nicht konstruktiv an Bestandsgebäude angeschlossen

Verbindungsbrücke

Bosch

Reutlingen

Verbindungsbrücke

Bosch

Reutlingen

IGR Ingenieure GmbH


Adressänderung seit 01.10.2025:

Gebelsbergstr. 41
D-70199 Stuttgart
Tel. 0711-6566079-0
Fax 0711-6566079-20
Diese E-Mail-Adresse ist vor Spambots geschützt! Zur Anzeige muss JavaScript eingeschaltet sein.