Punkthäuser am Europaplatz

Stuttgart

Projekt-Details

Architektur
Projekt GmbH, Esslingen


Bauherr
DIH Deutsch Wohnwerte GmbH & Co. KG.


Planungs und Bauzeit
Planung: 2012 - 2014


Leistungsphasen (HOAI)
Entwurf Tragwerksplanung


Baukosten / Honorarzone:
ca. 6 Mio. €


BGF / BRI
2850 m² / 9100 m³

Projektbeschreibung

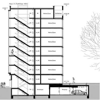
Im Rahmen der Umgestaltung des Europaplatzes wurden 3 Punkthäuser mit insgesamt 47 Eigentumswohnungen und einer Tiefgarage errichtet. Das achtgeschossige Gebäude musste teilweise über der Tiefgarage abgefangen werden.

Die Aussteifung für die Erdbebenzone 1 erfolgt über den Treppenhaus- und Aufzugsbau.

Punkthäuser am Europaplatz

Hochbau

Stuttgart

Punkthäuser am Europaplatz

Hochbau

Stuttgart

    IGR Ingenieure GmbH


    Adressänderung seit 01.10.2025:

    Gebelsbergstr. 41
    D-70199 Stuttgart
    Tel. 0711-6566079-0
    Fax 0711-6566079-20
    Diese E-Mail-Adresse ist vor Spambots geschützt! Zur Anzeige muss JavaScript eingeschaltet sein.