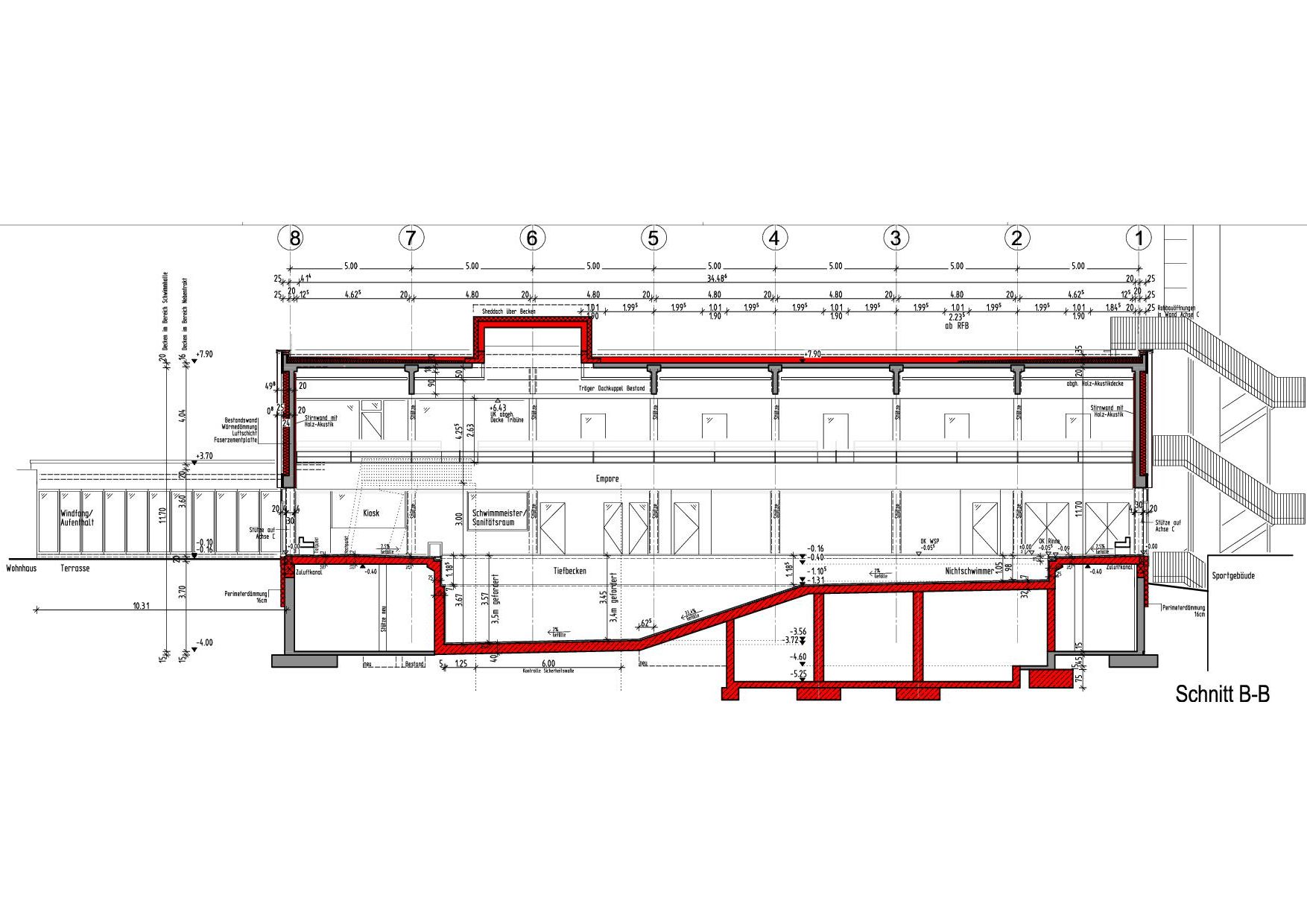
Das Gartenhallenbad in Bernhausen wurde 1970 eröffnet und wird nach über 50 Jahren im betrieb grundlegend erneuert und auf einen aktuellen Stand hinsichtlich Energieverbrauch und Technik gebracht.
Da das Becken und die Badeplatte gravierende Schäden an der Betonstruktur aufweisen, müssen diese Bauteile abgebrochen und neu aufgebaut werden.
Die bestehende Saunalandschaft im Obergeschoss wird umgebaut und in insgesamt drei Multifunktionsräume für örtliche Vereine umgewandelt. Zur notwendigen Entfluchtung des Obergeschosses wird eine Fluchttreppe benötigt.
Im Keller betreiben die Stadtwerke Filderstadt eine Nahwärmeversorgung mit Blockheizkraftwerken. Diese werden im Gebäude umgesetzt und der außenliegende Schornstein erneuert.
Gebelsbergstr. 41 D-70199 Stuttgart Tel. 0711-6566079-0 Fax 0711-6566079-20 Diese E-Mail-Adresse ist vor Spambots geschützt! Zur Anzeige muss JavaScript eingeschaltet sein.